- Hem
- Bloggar
- Monika Albertsson
- Svårt vara innovativ kring människans mått

Svårt vara innovativ kring människans mått
Regelverket blir inte enklare för att man tar bort detaljkrav. Mått och standarder är den samlade kunskapen för den bästa lösningen, så att man slipper uppfinna hjulet varje gång man ska bygga eller rita, skriver Monika Albertsson.
Det händer mycket när det gäller Plan- och bygglagen (PBL) och Boverkets byggregler (BBR) just nu. ”Möjligheternas byggregler” kallas den översyn av BBR som Boverket arbetar med. Syftet är enligt deras webb att åstadkomma ett moderniserat och förenklat regelverk och därigenom skapa förutsättningar för ett snabbare och mer kostnadseffektivt byggande. Det sker genom att många regler tas bort och de som blir kvar formuleras som funktionskrav. De allmänna råden i BBR med detaljutformning och hänvisningar till standarder kommer helt försvinna.
Blir BBR verkligen enklare att tolka då? Jag tvivlar. Bättre vore att rensa upp i alla otydligheter som redan idag finns i de båda regelverken och även gentemot annan lagstiftning, men det sker inte. Nya konstigheter och otydligheter kommer till i stället.
Felaktigheter i kunskapsbanken
I PBL kunskapsbanken finns Boverkets vägledning för PBL och BBR. Är tanken att den information som i dag finns i BBR ska finnas här i framtiden? Det verkar så. Kunskapsbanken fylls på hela tiden och blir mer omfattande. Den innehåller också en del illustrationer. Problemet är att det finns rätt mycket felaktigheter, framför allt i illustrationerna. Ett exempel: den tillgängliga toaletten för publika lokaler saknar stödhandtag vid toalettstolen och handfatet är för litet och sitter för långt in i rummet. Inga exakta mått till inredningen finns heller. Tyvärr är det sådana felaktigheter byggherrar gärna åberopar, speciellt om de kan spara kostnader. Det som finns på Boverkets webb gäller ju, eller hur?

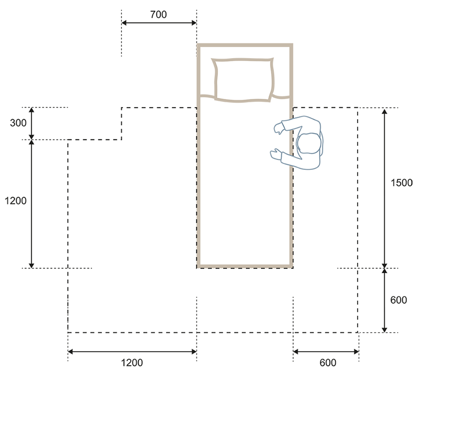
Ett annat exempel är mått vid säng för medhjälpare. Nyligen publicerade Boverket information om det på kunskapsbanken. Verket hänvisar till standarden för bostadsutformning SS 91 42 21 när det anger minimimåttet 600 mm på sängens bortre sida. Det finns dock två mått i standarden: det ena bredvid en enkelsäng 600 mm, det andra bredvid en parsäng 700 mm. Bara det är ologiskt och borde vara samma mått.
Bostadsstandarden är från 2006 och det pågår just nu en revidering. Några av oss som sitter i kommittén vill ändra måttet till det som Arbetsmiljöverket föreskriver i Arbetsplatsens utformning (AFS 2020:1), det vill säga 800 mm. Det stöter dock på patrull eftersom konsensus inte råder i kommittén. De som representerar byggindustrin vill inte öka något mått alls. Även Boverket motsätter sig förändringen, vilket man också skriver i sitt remissvar våren 2020. Varför?

Olika mått för arbetstagare och släktingar
Den förklaring Boverket ger är att myndigheten inte tar fram föreskrifter för arbetstagare – det gör Arbetsmiljöverket. Samtidigt finns i BBR på flera ställen krav som gäller platser där arbetstagare arbetar: BBR 3:4 om driftutrymmen, BBR 3:3113 om höjd i arbetslokaler och BBR 8:24 om taksäkerhet till exempel.
Det står också i BBR kapitel 3 att det ska finnas plats för medhjälpare i hiss, i badrummet och vid sängplatsen. Enligt Svenska Akademiens ordbok definieras medhjälpare som ”person som (yrkesmässigt) arbetar för att underlätta viss verksamhet”. Så då är väl medhjälparen i BBR per definition en arbetstagare, till exempel från hemtjänsten? Nej, inte enligt Boverket. Hemtjänstpersonalen bortser man helt ifrån. Boverket skriver att medhjälparen kan vara en släkting och då krävs bara 600 mm! Varför skulle en släkting behöva ett mindre mått än en tränad arbetstagare?
Märkligheterna fortsätter: ”Arbetsmiljöreglerna är tillämpliga när det finns ett arbetsgivar- och arbetstagarförhållande, till exempel när personal arbetar på särskilda boendeformer för äldre. Vid arbete där arbetstagaren måste utföra arbetsmoment som innebär kraftutövning eller arbete där arbetstagare behöver vrida, huka eller böja sig ned, ska det normalt finnas ett fritt arbetsutrymme om minst 0,8 meter. Då hjälpmedel och arbetsutrustning, eller annan teknisk utrustning, används behövs dessutom ett fritt utrymme för att hantera och manövrera dessa. Det är alltså högre ställda krav utifrån arbetsmiljölagstiftningen. Vid projektering av byggnader är det viktigt att känna till helheten med olika slags regler och då känna till att arbetsmiljölagstiftningen har högre krav. Byggnadsnämnden kan endast pröva måtten utifrån bygglagstiftningen.”


Att hemtjänstens arbetsplats är i det enskilda hemmet nämns inte med ett ord. Det bortser man helt ifrån och att Arbetsmiljölagen gäller även för dem. Det finns flera rättsfall som visar det. Boverket skriver också att byggnadsnämnden bara kan pröva måttet utifrån bygglagstiftningen. Det borde i så fall gälla även särskilda boende för äldre och att byggnadsnämnden även här bara kan godkänna måttet 600 mm.
Resonemanget faller på sin egen orimlighet och det underlättar knappast tolkningen av bygglagstiftningen. Så varför detta hårdnackade motstånd mot att ange minimimåttet 800 mm för medhjälparen – måttet har prövats i flera rättsfall. Finns det överhuvudtaget något stöd för 600 mm? Varför denna rädsla för att öka ett mått eller ett krav som gäller bostäder? Finns det något direktiv ovanifrån att krav och mått i bostadsbyggandet måste krympas till varje pris, eftersom bostadsproducenterna säger att det är det enda sättet att bygga billigare bostäder?
Kommuner får mindre möjlighet att granska
I stället för att se över alla otydligheter i PBL och BBR och gentemot andra lagar och föreskrifter finns nu i stället ett lagförslag att frånta kommunerna möjligheten att granska bostadsprojekt i bygglovskedet om ett certifierat byggprojekteringsföretag har ritat. Bygglovshandläggaren ska bara skriva på in blanco, så att säga. Kommunernas olika tolkningar anser byggindustrin vara kostnadsdrivande, vilket kanske inte är så konstigt med tanke på hur regelverken ser ut. Förslaget om certifierade byggprojekteringsföretag kommer från Boverket och en lagrådsremiss har tagits fram. Lagrådet verkar dock inte helt övertygad. De har mycket synpunkter på det nya lagförslaget.
Ett tydligare regelverk skulle minska tolkningsutrymmet, inte enbart för kommunerna utan generellt. Visserligen kan kommunen enligt förslaget ha synpunkter senare i processen, men då är det ofta betydligt svårare och dyrare att rätta till fel. Det var anledningen till att man i nya PBL 2011 införde granskningen av en byggnads ändamålsenlighet och delar av tillgänglighetskraven redan i bygglovsskedet. Förslaget med certifierade byggprojekteringsföretag innebär en återgång till en ordning som redan testats och som visat sig inte fungera.
Mått gör byggandet enklare
Det är ett tankefel att regelverket blir enklare bara för att man tar bort detaljkraven. Det kan faktiskt vara tvärtom. Finns mått att tillgå så behöver man inte uppfinna hjulet varje gång man ska bygga eller rita. Någon annan har redan studerat och samlat kunskap för att få fram den bästa lösningen.
Tanken med funktionskraven – som introducerades med BBR på 1990-talet – var från början att de skulle främja nytänkande och innovationer, men hur innovativ kan man vara när det gäller till exempel måtten i en trappa? De utgår från människan mått och förändras inte. De mått som fanns för en trappa i SBN (Svensk byggnorm – föregångaren till BBR) är fortfarande funktionella: steghöjd max 0,18 m, stegdjup minst 0,25 m och max 18 steg i följd utan vilplan. Svårare än så behöver det inte vara.
Att ta bort de allmänna råden i BBR och hänvisningar till standarder och i stället försöka sammanställa all den kunskapen på PBL kunskapsbanken är en orimligt omfattande uppgift. Det krävs också detaljerad kompetens inom många områden. En kompetens som inte verkar finnas på Boverket – om man ser till de illustrationer som kunskapsbanken redovisar – åtminstone inte när det gäller tillgänglighet och användbarhet för personer med nedsatt rörelseförmåga.
Arkitekt SAR/MSA Monika Albertsson
P.S. Videor från Skellefteå kommun och Arbetsmiljöverket som visar hur man hjälper en sängliggande person finns på Youtube, kan ses här och här
P.S.2. Länkar till regelverket och förslag til förändringar:



