- Hem
- Arkitekturpriser
- Kasper Salin-priset
- Aranäsgymnasiet – vinnare Kasper Salin-priset 2006
Vinnare av Kasper Salin-priset 2006
Vinnare 2006
Vinnare Kasper Salin-priset 2006
Aranäsgymnasiet – vinnare Kasper Salin-priset 2006
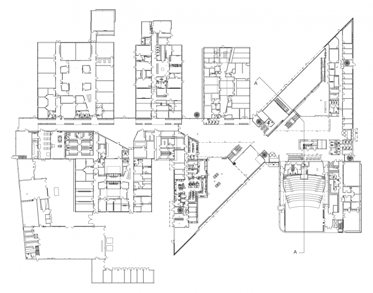
Aranäsgymnasiet i Kungsbacka, vinnare av Kasper Salin-priset 2006.
Juryns motivering
För en ambitiös upprustning och tillbyggnad av ett gymnasium som skapar ett kulturhus, tänkt att knytas samman med stadskärnan i en kvartersstruktur. De slipade betongelementen ger byggnaden en anslående grafisk skärpa med ett enkelt och robust material. De trekantiga ljusgårdarna skapar en variationsrik sekvens av inre rum, längs ett stråk med kopplingar till olika entrégårdar.


